
PLANNING BOARD LIMITED PUBLIC HEARING
The Planning Board will meet on Thursday, April 16 at 6 p.m. for a limited public hearing and business meeting. If you cannot make the meeting in person, it will be broadcast live on Manchester Public Television, Channel 22. The agenda is available online.
The following application will be discussed during the limited public hearing:

PDSP2025-009: 2035 & 2055 Brown Avenue, General Business District & Residential One Family High Density District, Ward 8
Continued from April 2, 2026. Applicant has submitted a site plan planned development application for the renovation of a former bank into a coffee shop, and the redevelopment of a former car rental business into a new gas station/convenience store. The proposal includes a merger of lots, and reconfigured curb cuts.

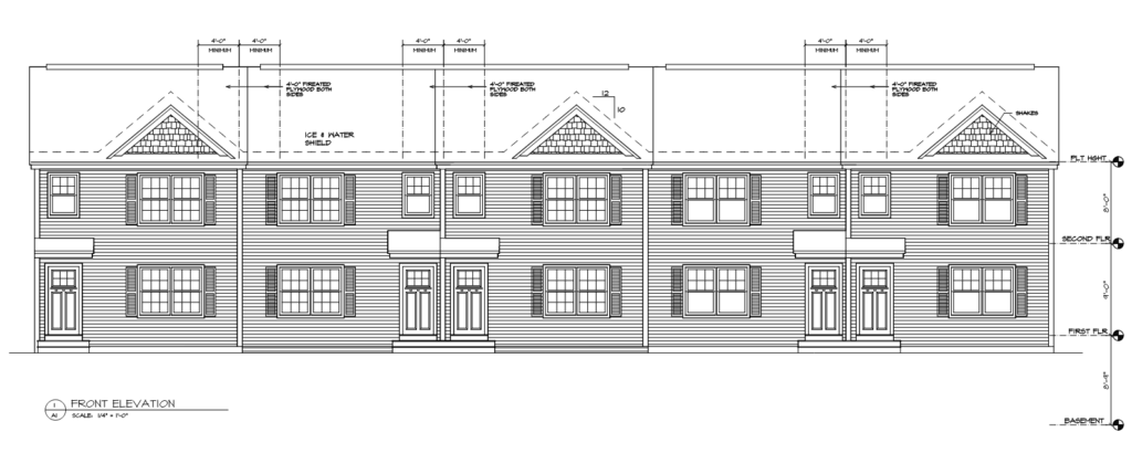
SP2026-004: 144 Calef Road, General Mixed Use District, Ward 3
Continued from April 2, 2026. Applicant has submitted a site plan application for a 5-townhouse building.
PLANNING BOARD BUSINESS MEETING
The following pair of applications will be decided during the business meeting:
- PDSP2025-007: 220 Londonderry Turnpike
- PDSP2026-001: Hackett Hill Road (Tax Map 766, Lot 15J)
- PDSP2026-002: Hackett Hill Road and Countryside Boulevard (Tax Map 766, Lot 15J)
- SP2026-003: 308 Taylor Street
- SP2026-004: 144 Calef Road
ZONING BOARD UPDATES
The Zoning Board met on Thursday, March 9 and the following variances were decided. A recording of the meeting will be made available on-demand via Manchester Public Television.
- ZBA2026-003: 185 Woodland Avenue and Crystal Street, Variances denied.
- ZBA2026-015: 247 West Mitchell Street, Variances granted.
- ZBA2026-017: Bruce Road & Smyth Road (Tax Map 587, Lot 12), Variance granted.
- ZBA2026-018: 23 Amherst Street, Variance granted.
- ZBA2026-019: 450 Howe Street, Variances denied.
- ZBA2026-020: 105 Pahray Lane, Variances granted.
- ZBA2026-021: 423 Blevens Drive, Variances granted.
- ZBA2026-023: 577 Pine Street, Variances granted with conditions.
- ZBA2026-022: 1265 South Willow Street, Variances granted.
- ZBA2026-024: 1279 South Willow Street, 55 & 115 John E. Devine Drive, and 970 & 1050 Gold Street, Variances granted.