
PLANNING BOARD PUBLIC HEARING
The Planning Board will meet on Thursday, April 2 at 6 p.m. and the following applications will be heard. If you cannot make the meeting in person, it will be broadcast live on Manchester Public Television, Channel 22. The agenda is available online.

PDSP2025-009: 2035 & 2055 Brown Avenue, General Business District & Residential One Family High Density District, Ward 8
Continued from March 5, 2026. Applicant has submitted a site plan planned development application for the renovation of a former bank into a coffee shop, and the redevelopment of a former car rental business into a new gas station/convenience store. The proposal includes a merger of lots, and reconfigured curb cuts.

PDSP2026-001: Hackett Hill Road (Tax Map 766, Lot 15J), Residential Suburban-Multifamily District, Ward 12
Continued from March 5, 2026. Applicant has submitted a planned development and site plan amendment for a Phase 6 expansion of the Hidden Oak development. The proposal includes adding (20) twenty townhouse units, within (4) four buildings, to the 152 units existing on-site in addition to a 1010 SF clubhouse addition. Access for these new residential buildings is proposed by creating two new curb cuts on Hackett Hill Road within the Hooksett town line.

PDSP2026-002: Hackett Hill Road & Countryside Boulevard (Tax Map 766, Lot 15J), Residential Suburban-Multifamily District, Ward 12
Continued from March 5, 2026. Applicant has submitted a planned development and site plan amendment for a Phase 7 expansion of the Hidden Oak development. The proposal includes adding (8) eight townhouse units within (2) two buildings, to the 152 units existing on-site. Access for these new residential buildings is proposed by creating a new curb cut on Countryside Boulevard.

S2026-005: Wellington Road (Tax Map 860, Lot 30), Residential One Family Medium Density District, Ward 2
Applicant has submitted a subdivision application for the creation of 34 new buildable lots with new public roads and a wetland crossing, in the Lake Massabesic Protection Overlay District.

S2024-011 Extension: 30 Bryant Road, Residential Suburban District, Ward 8
Applicant has submitted a subdivision approval extension request for an existing 31.04 acres with existing wetlands. The proposal includes subdividing the lot into 19 buildable lots.

SP2025-002 Extension: 2 Plaza Drive, Central Business District, Ward 3
Applicant has submitted a one-year extension request for conditional site plan approval for the conversion of the top levels of the Brady Sullivan Plaza parking garage into 60 residential units.

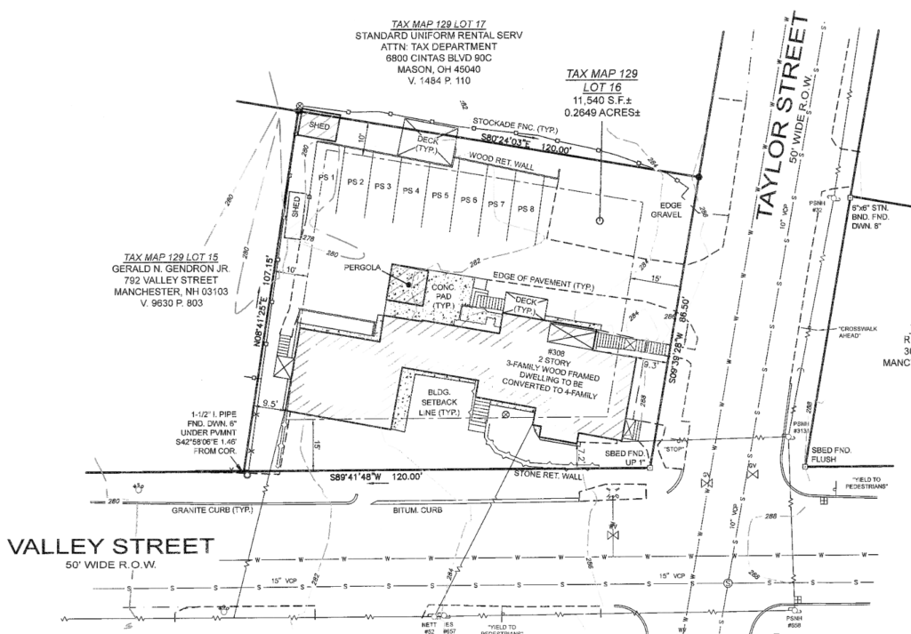
SP2026-003: 308 Taylor Street, Residential Two Family District, Ward 5
Applicant has submitted a site plan application for one additional dwelling unit in an existing three-unit building with no exterior changes.

SP2026-004: 144 Calef Road, General Mixed Use District, Ward 3
Applicant has submitted a site plan application for a 5-townhouse building.

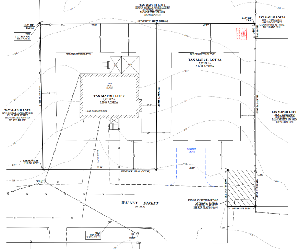
SP2026-006: 500 Walnut Street, Residential One Family High Density District, Ward 1
Applicant has submitted an application for the subdivision of one lot into two, where the new Lot 9 will have 7,857 SF and keep the existing house where the new Lot 9A will have 7,215 SF.

SP2026-005: 144 Dunbarton Road, Residential Multifamily District, Ward 12
Applicant has submitted a site plan application for a new clubhouse and pool for the Manchester Gardens apartment complex.
PLANNING BOARD LIMITED BUSINESS MEETING
The following subdivision application will be discussed during a limited business meeting:
- S2024-011 Extension: 30 Bryant Road
- SP2025-002 Extension: 2 Plaza Drive
PLANNING BOARD UPDATES
The Planning Board met on Thursday, March 19 for a limited public hearing and business meeting. The following applications were decided. If you missed the meeting, it is available on-demand via Manchester Public Television.
- PDSP2025-007: 220 Londonderry Turnpike, Application approved.
- SP2026-001: 22 Hazel Street, Application approved.
- SP2024-001 Amendment: 215 Canal Street, Application approved.
- PDSP2026-003: 537 Union Street & 12 Walnut Street, Application approved.
- S2026-002: 385 Youville Street, Application approved.
- S2026-003: 192 Mammoth Road, Application approved.