PLANNING BOARD PUBLIC HEARING
The Planning Board will meet on Thursday, April 4 at 6 p.m. and the following applications will be heard. If you cannot make the meeting in person, it will be broadcast live on Manchester Public Television,ย Channel 22. The agenda is available online.

S2024-003: 1415 Elm Street, Central Business District, Ward 3
Applicant has submitted a subdivision application for the creation of a new lot of approximately 18,220 square feet, from a parent lot of approximately 79,970 square feet, with access and utility easements.

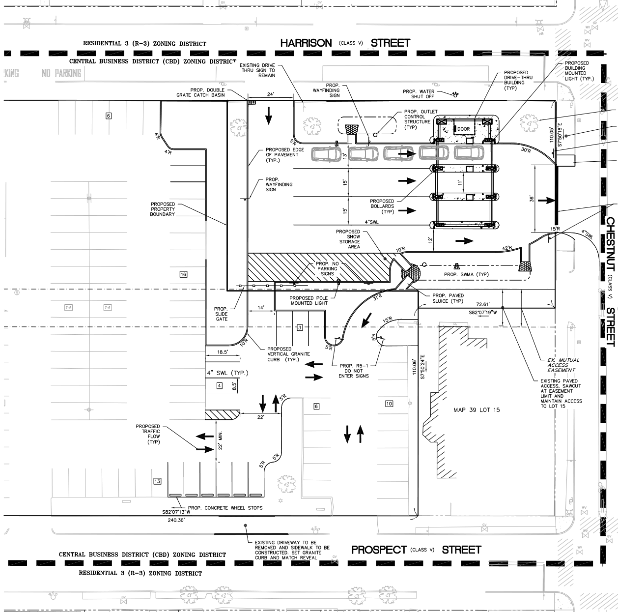
SP2024-006: 25 Harrison Street, Central Business District, Ward 3
Applicant has submitted a site plan application for an approximately 1,674 square foot bank drive-thru with a virtual teller, three service lanes, a bypass lane, and a new curb cut on Chestnut Street.
PLANNING BOARD BUSINESS MEETING
The following application will be discussed during a limited business meeting:
- SP2024-003: 2405-2445 Brown Avenue
The Planning Board also met on Thursday, March 21 and the following application was approved. If you missed the meeting, it is available on-demand via Manchester Public Television.
- SP2024-004: 151 Elm Street, Application approved.
ZONING BOARD UPDATES
The Zoning Board will meet again on Thursday, April 11 and will consider a new set of requested variances. A meeting agenda will be posted online once it is ready. The meeting will be broadcast live on Manchester Public Television,ย Channel 22. A recording of the meeting will be made available on-demand via Manchester Public Television.