Density, congregate housing and new construction top this week’s Zoning Board agenda

City Works is a regular feature designed to provide a preview of upcoming Planning and Zoning Board Meetings.


PLANNING BOARD

The Planning Board met on June 1 and the following cases were decided during a Limited Business Meeting. If you missed the meeting, it is available to watch on-demand.

  • IMP2023-003 & PDSP2022-002EXT: Properties located between Smyth Road and Radburn Street: Board denied the waiver of Fire Impact Fees and agreed to reduce School Impact Fees to be in alignment with recently approved schedule.

ZONING BOARD

The Zoning Board will meet on Thursday, June 8ย at 6 p.m. and the following cases will be heard. If you cannot make the meeting in person, it will be broadcast live on Manchester Public Television, Channel 22. The Agenda is available on-line.

ZBA2023-046: 114 Mast Road, Residential One Family High Density Zoning District, Ward 10 (Tabled from 5/11/23 Hearing)

Applicant proposes to construct a 5โ€™7โ€ x 12โ€™ 2 ยผโ€ one-story addition for a bathroom with a 5โ€™ side yard setback where 10โ€™ is required and seeks a variance from section 6.03(C) Side Yard Setback.

See Project Application for additional detail.

ZBA2023-029: 357 Central Street, Residential Two Family Zoning District, Ward 5ย  (Postponed from 5/11/23 hearing)

Applicant requests a reasonable accommodation to occupy three dwelling units in a three unit multifamily dwelling with seven (7) unrelated persons in the first floor dwelling unit, six (6) unrelated persons in the second floor dwelling unit and five (5) unrelated persons in the third floor dwelling unit where the Zoning Ordinance allows four (4) unrelated persons in a dwelling unit and alternatively seeks a variance to occupy a three family dwelling as a congregate housing use with nine bedrooms accommodating 18 unrelated persons from section 5.10(A)10 Congregate Housing.

See Project Application for additional detail.

ZBA2023-050:ย  55-57 Manchester Street, Central Business Zoning District, Ward 3
Applicant proposes to create five (5) additional dwelling units on the first floor of a former commercial space resulting in thirteen (13) dwelling units on a lot with 3,764 SF where 8,000 is required and seeks a variance from section 8.04 Minimum Lot Size for MultiFamily Dwellings.

See Project Application for additional detail.

ZBA2023-051: 808 Brent Street, Residential One Family High Density Zoning District, Ward 8
Applicant proposes to construct a detached deck for an above ground pool on a corner lot with a 14โ€™ street yard setback where 20โ€™ is required and maintain a front yard parking space within 4โ€™ of the property line and seeks a variance from sections 8.29(A)1 Accessory Structures and 10.09(B) Parking Setbacks (2 counts).

See Project Application for additional detail.

ZBA2023-052: 1080 Ray Street, Residential One Family Medium Density Zoning District, Ward 1
Applicant proposes to construct a one-story addition with a 12.5โ€™ side yard setback where 20โ€™ is required and seeks a variance from section 6.03(C) Side Yard Setback.

See Project Application for additional detail.

ZBA2023-053:ย  265 Ashland Street, Residential One Family High Density Zoning District, Ward 2
Applicant proposes to construct a 10โ€™ x 16โ€™ one-story addition with a 9โ€™ front yard setback where 20โ€™ is required and seeks a variance from section 6.03(A) Front Yard Setback.

See Project Application for additional detail.

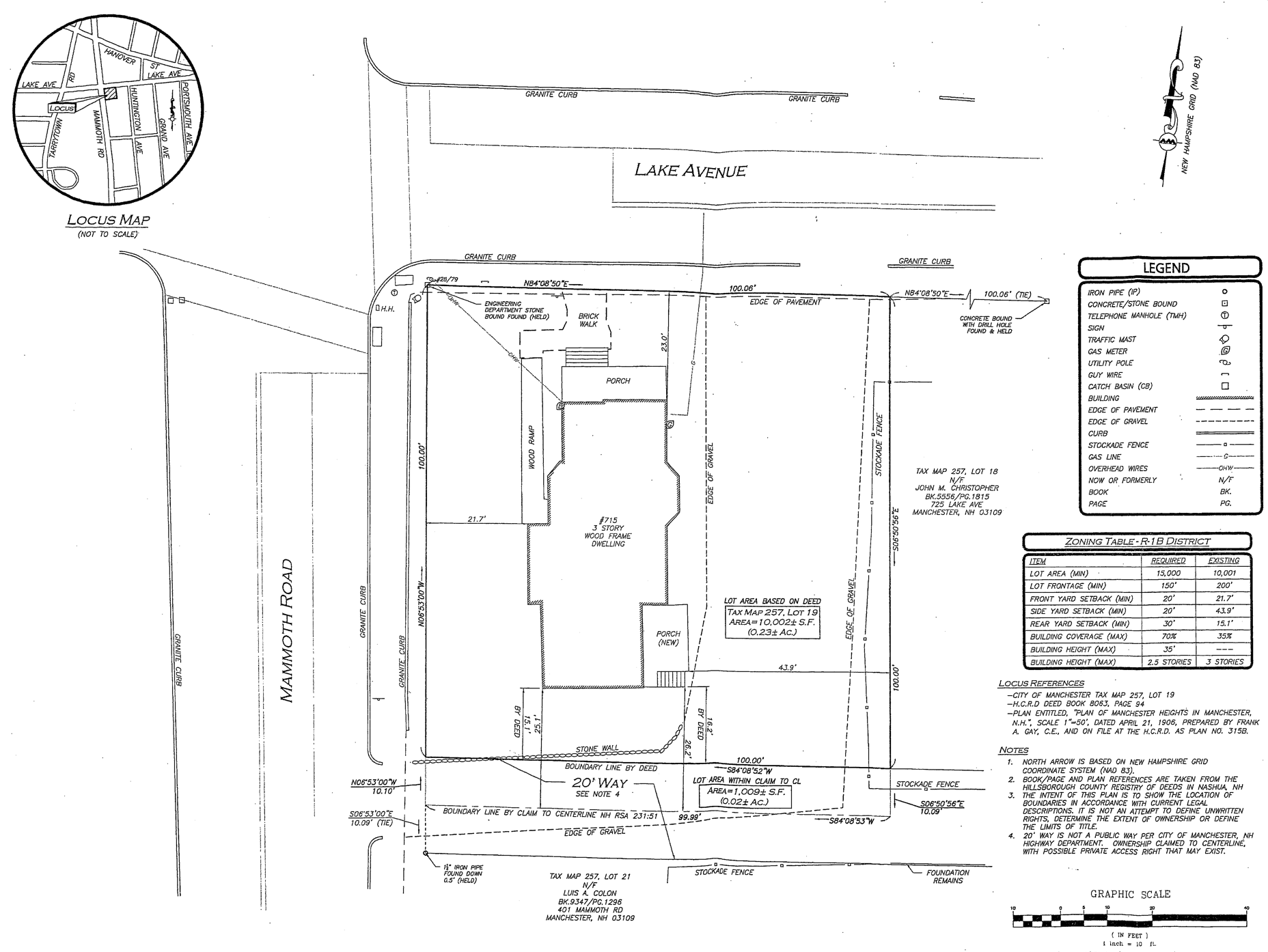
ZBA2023-054:ย  715 Lake Avenue, Residential One Family High Density Zoning District, Ward 5
Applicant proposes to construct a porch with a side yard setback of 16.2โ€™ where 20โ€™ is required and maintain a ramp in the front yard with a front yard setback of 15โ€™ where 20โ€™ is required and seeks a variance from sections 6.03(A) Front Yard Setback and 6.03(C) Side Yard Setback.

See Project Application for additional detail.

ZBA2023-055: 55 Dove Lane, Residential One Family High Density Zoning District, Ward 6
Applicant proposes to construct a 10โ€™ x 14โ€™ shed in the side yard with a 4โ€™ side yard setback where 10โ€™ is required and seeks a variance from section 8.29(A)2 Accessory Structures and Uses.

See Project Application for additional detail.

ZBA2023-056:ย  359 Myrtle Street, Residential Two Family Zoning District, Ward 2
Applicant proposes to construct a shed 3โ€™ from the rear lot line where 4โ€™ is required, create three parking spaces within 4โ€™ from a building or lot line and seeks a variance from sections 10.09B Parking Setbacks and 8.29(A) Accessory Structures and Uses.

See Project Application for additional detail.

ZBA2023-058:ย  298 Straw Road, Residential One Family High Density Zoning District, Ward 12
Applicant proposes to construct a single family home where the primary entrance does not face the front lot line and create a storage area for a recreational vehicle in the front yard and seeks a variance from sections 3.03 Primary Faรงade and 8.29(A)1 Accessory Structures and Uses.

See Project Application for additional information.

ZBA2023-061: 69 Ridge Road, Residential One Family High Density Zoning District, Ward 1
Applicant proposes to construct a 10′ x 10′ shed with a 4′ street yard setback on a corner lot and create a 550 SF patio resulting in 42% lot coverage where 40% is allowed and seeks a variance from sections 8.29(A)1 Accessory Structures and 6.04 Lot Coverage.

See Project Application for additional detail.

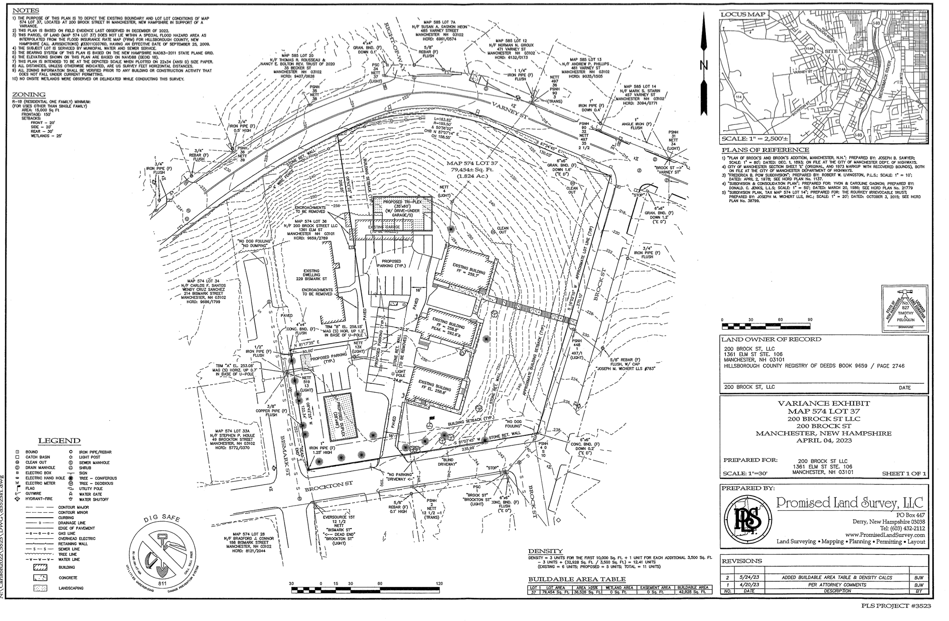
ZBA2023-067: 200 Brock Street, Residential One Family High Density Zoning District, Ward 10
Applicant proposes to expand an existing non-conforming use of a three building, six unit residential planned development by constructing a two-family dwelling and a three-family dwelling, resulting in a total of 11 dwelling units and seeks a variance from sections 5.10(A)5 Two-Family Dwelling and 5.10(A)6 Multi-Family Dwelling.

See Project Application for additional detail.

ZBA2023-060: 27 Myrtle Street, Urban Multifamily Zoning District, Ward 3
Applicant proposes to convert a one-family dwelling to a two-family dwelling on a lot with 4,509 SF where 5,000 SF is required and with lot frontage and width of 45.03โ€™ where 50′ is required and create two parking spaces where one is within 4โ€™ of a building and the other is within 4โ€™ of the rear lot line and seeks a variance from sections 6.01 Minimum Buildable Lot Area, 6.02 Minimum Lot Frontage and Width and 10.09(B) Parking Setbacks (2 Counts).

See Project Application for additional detail.

ZBA2023-062: 209 Massabesic Street, Residential Two Family Zoning District, Ward 5
Applicant proposes to convert a one-family dwelling to a two-family dwelling on a lot with 5,054 SF where 6,500 SF is required and with lot frontage and width of 50.4′ where 75′ is required in the R-2 zoning district and seeks a variance from sections 6.01 Minimum Buildable Lot Area and 6.02 Lot Frontage and Width.

See Project Application for additional detail.

ZBA2023-063: 249 Barrett Street, Residential One Family High Density Zoning District, Ward 1
Applicant proposes to maintain and repave a parking space in the side yard within 4′ of a building in the R-2 zoning district and seeks a variance from section 10.09(B) Parking Setbacks.

See Project Application for additional detail.

 


The Applicant for ZBA2023-011: 55 Edward J. Roy Drive, Ward 2 has requested a rehearing, appealing the decision of the Zoning Board of Adjustment denying the special exception to add drive through service to a restaurant, gas station and convenience store. The original project application can be found here and the request for rehearing application can be found here. This case was initially heard at the May 11 meeting and can be seen on-demand.


 


Sign up for the FREE daily newsletter and never miss another thing!

Subscribe

* indicates required

Support Ink Link