City Works is a regular feature designed to provide a preview of upcoming Planning and Zoning and Board Meetings.
PLANNING BOARD
The Planning Board met on Thursday, September 1 and the following cases were heard and the public hearings were closed. Applications will be discussed in more detail and decided at the Business Meeting scheduled for September 15. If you missed the meeting and would like more detail, it will be available to watch on-demand.
- SP2018-079 Amendment: 896 Goffs Falls Road, General Industrial / Industrial Zoning District, Ward 8
- CU2022-024: 299 Corning Road, Residential One Family Medium Density Zoning District, Ward 8
- 2022-026 & SP2022-009: 48 Brook Street, Urban Multifamily Zoning District, Ward 3
- SP2022-16: 415-417 Granite Street,ย Residential Two Family Zoning District, Ward 10
The Board requested additional information on the following case and this application will be back before the Board for a Limited Public Hearing on September 15:
- SP2022-003, 610 Second Street,ย General Business Zoning District, Ward 10
The applicant for the SP2022-017: 80 Walsh Ave was not in attendance at the meeting. This case will be held over until the October 6 Public Hearing.
During a Limited Business Meeting, the following cases were discussed and applications were approved:
- CU2022-022: 240 Pinecrest Road,ย Residential One Family Medium Density Zoning District, Ward 1
- CU2022-023: 651 Central Street,ย Residential Two Family Zoning District, Ward 5
- CU2022-025: 303 Pine Street,ย Urban Multifamily Zoning District, Ward 3
ZONING BOARD
The Zoning Board will meet on Thursday, September 9 at 6ย p.m. This meeting will be available to watch on Manchester Public Television, Channel 22. The full Agenda and Project Applications are available for each of the projects below. If you are not able to attend a public hearing and would like to comment on a project, you may send an email toย zoningboard@manchesternh.gov.

ZBA2022-076: 96 Pinard Street and Biron Street, Residential One Family High Density Zoning District, Ward 10
Applicant proposes to subdivide the property where proposed Tax Map 693, Lot 7 will remain improved with a single family dwelling with buildable land area of 4,635 SF where 7,500 SF is required and a rear yard setback of 22.9โ where 30โ is required and where proposed Tax Map 693, Lot 8A will have buildable land area of 4,675 SF where 7,500 SF is required and lot frontage and width of 50โ where 75โ and with a an accessory shed structure as the principal use of the lot and seeks a variance from sections 6.01 Minimum Buildable Lot Area, and 6.03(B) Rear Yard Setback at Tax Map 693, Lot 7 and 6.01 Minimum Buildable Lot Area, 6.02 Minimum Lot Frontage and Width (2 counts), 5.10(A) Accessory Structure as a Principal Use. (Tabled from June 9.)

ZBA2022-063: 15 Cohas Avenue, Residential One Family High Density Zoning District, Ward 6
Applicant proposes to subdivide the property to create one new building lot, where proposed lot Tax Map 818, Lot 20-1 will remain improved with a single family dwelling, with lot frontage and width of 60โ where 75โ is required, and where proposed lot Tax Map 818, Lot 20 will have lot frontage and width of 20โ where 75โ is required and a proposed west facing primary facฬงade where the primary facฬงade is required to face the front lot line to the north and seeks a variance from sections 6.02 Minimum Lot Frontage and Width (2 counts) at Tax Map 818, Lot 20-1 and 3.03 Primary Facฬงade and 6.02 Minimum Lot Frontage and Width (2 counts) at Tax Map 818, Lot 20. (Tabled from June 9.)

ZBA2022-097: 232 Huse Road, Residential One Family High Density Zoning District, Ward 8
Applicant proposes to expand a circular driveway and create three front yard parking spaces and seeks a variance from section 10.09(B) Parking Setbacks (3 counts). (Tabled from August 9.)

ZBA2022-104: 415-417 Granite Street, Residential Two Family Zoning District, Ward 10
Applicant proposes to convert the first floor of a mixed-use building from a church and appliance storage to a dwelling unit, resulting in a five-unit multi-family dwelling and seeks a variance from section 5.10(A)6 Multi-family Dwelling.

ZBA2022-107: 831 Chestnut Street, Residential One Family High Density Zoning District, Ward 1
Applicant proposes to convert a single family dwelling to a two family dwelling on a lot with 5,550 SF where 15,000 SF is required, with lot frontage and width of 50โ where 150โ is required, with side yard setbacks of 0โ and 16โ where 25โ is required, with lot coverage of 86% where 70% is allowed, with parking spaces without the required 10โ landscape buffer and without bumpers, and without a required two way access aisle and seeks a variance from sections 5.10(A)5 Two Family Dwelling, 6.01 Minimum Buildable Lot Area, 6.02 Minimum Lot Frontage and Width (2 counts), 6.03(C) Side Yard Setback (2 counts), 6.04 Lot Coverage, 10.09(B) Parking Setbacks (7 counts), 10.06(A) Parking Layout, 10.07(G) Landscaping, 10.07(K)1 Parking Bumpers and 10.07(K)4 Parking Screening.

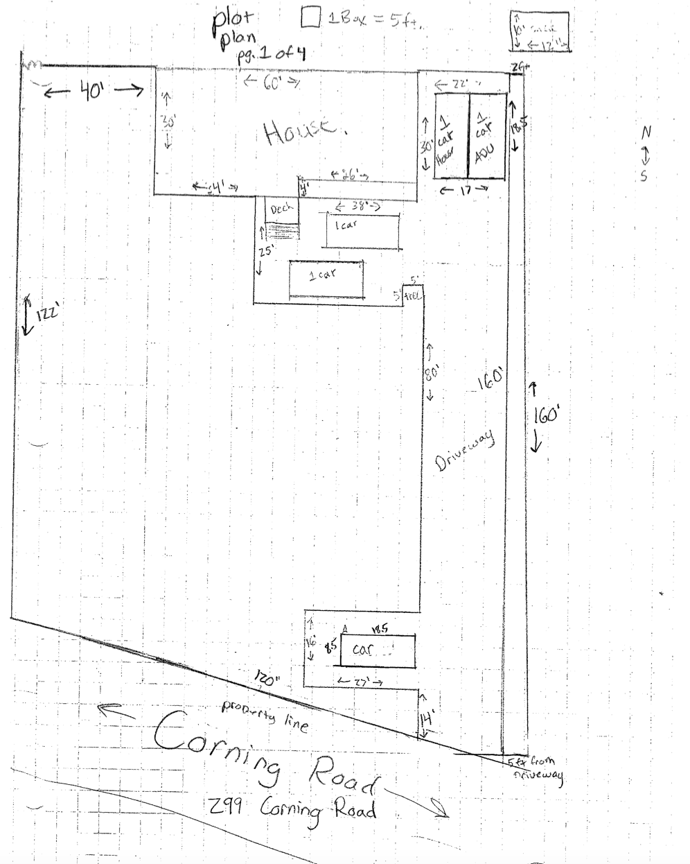
ZBA2022-108: 299 Corning Road, Residential One Family Medium Density Zoning District, Ward 8
Applicants propose to create an accessory dwelling unit with 1,276 SF of gross floor area where 750 SF is allowed, maintain three front yard parking spaces, maintain one parking space within 4โ of the side lot line and maintain a shed in the rear yard 0โ from the side lot line where 4โ is required and seek a variance from sections 8.26(C) Accessory Dwelling Unit, 10.09(B) Parking Setbacks (4 counts) and 8.29(A)3 Accessory Structures and Uses.

ZBA2022-077: 500 Harvey Road, General Industrial / Industrial Zoning District, Ward 8
Applicant proposes to convert the top floor of an office building into four residential units and seeks a variance from section 5.10(A)8 Dwellings in Upper Story of Building with Commercial First Floor.

ZBA2022-109: 406 North Bay Street, Residential One Family Medium Density Zoning District, Ward 1
Applicant proposes to construct a deck with a side yard setback of 7โ where 20โ is required and seeks a variance from section 6.03(C) Side Yard Setback.

ZBA2022-110: 180 Pearl Street, Civic-Institutional Zoning District, Ward 4
Applicant wishes to amend the variance granted in case ZBA2021-037, which allowed relief to allow 29 dwelling units, by increasing the total number of dwelling units to 30 on a lot with 57,530 SF where 104,500 SF is required and seeks a variance from section 8.04 Minimum Buildable Lot Area for Multi-Family Dwellings.

ZBA2022-111: 1 Bodwell Road, Residential One Family Medium Density Zoning District, Ward 8
Applicant proposes to replace an existing utility pole along the 393 Distribution Line with a larger utility pole and seeks a special exception from section 5.10(E)12 Essential Public Services, Utilities and Appurtenances.

ZBA2022-113: 756 Harvard Street, Residential Two Family Zoning District, Ward 7
Applicant proposes to reconstruct an 8โ x 24โ enclosed porch with a 1โ front yard setback where 15โ is required and a side yard of 6โ where 10โ is required and seeks a variance from sections 6.03(A) Front Yard Setback and 6.03(C) Side Yard Setback.

ZBA2022-114: 80 Billings Street, Residential Two Family Zoning District, Ward 9
Applicant proposes to rebuild a deck around a sunroom with a larger footprint with a 14โ front yard setback where 15โ is required and with a rear yard setback where 20โ is required and seeks a variance from sections 6.03(A) Front Yard Setback and 6.03(B) Rear Yard Setback.

ZBA2022-116: 389 Hawthorne Street, Residential One Family High-Density Zoning District, Ward 2
Applicant proposes to expand the existing driveway to create a second parking space within the front yard setback and seeks a variance from section 10.09(B) Parking Setbacks.

ZBA2022-091: 215 Bridge Street, Neighborhood Business Zoning District, Ward 4
Applicant proposes to create a dwelling unit above a beauty salon resulting in three dwelling units with three parking spaces within 4โ of a building and a drive aisle less than the required 12โ in width and seeks a variance from sections 5.10(A)6 Multi-Family Dwelling, 10.09(A) Parking Setbacks and 10.06(A) Parking Layout.

ZBA2022-117: 27 Sagamore Street, Urban Multifamily Zoning District, Ward 3
Applicant proposes to maintain an 18 SF monument sign 2โ from the front lot line where 5โ is required and seeks a variance from section 9.08(C) Signs.

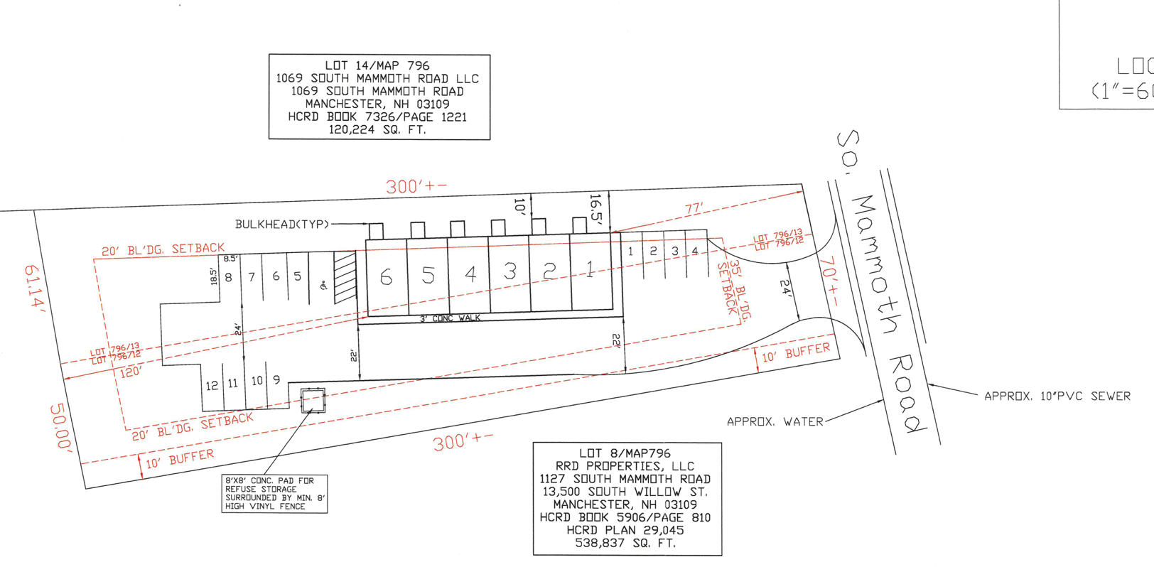
ZBA2022-118: South Mammoth Road, Map 796, Lots 12 and 13, General Industrial / Industrial Zoning District, Ward 8
Applicant proposes to construct a six-unit townhouse dwelling on a lot with 70โ of frontage and width where 100โ is required, with a 10โ side yard setback where 20โ is required, where a portion of the parking area has a landscape buffer of 7โ where 10โ is required, and with a proposed dumpster located within the side yard setback and seeks a variance from. sections 5.10(A)2 Single Family Attached Townhouse Dwellings, 6.02 Minimum Lot Frontage and Width (2 counts), 6.03(C) Side Yard Setback, 10.07(G) Landscaping and 8.29(B) Accessory Structures and Uses.

ZBA2022-119: 1111 South Willow Street, General Business Zoning District, Ward 9
Applicant proposes to install eight electric vehicle charging stations and associated equipment, where three electric vehicle charging stations are within the front yard setback, and where each charging station has a two-sided illuminated logo that exceeds the allowed signage for the site and seeks a variance from sections 9.09(A)1 Signs (16 counts) and 8.29(B) Accessory Structures and Uses.

ZBA2022-120: 1173 Bridge Street, Residential One Family High-Density Zoning District, Ward 6
Applicant proposes to create three front yard parking spaces within 4โ of the front lot line, with a driveway width of 39โ where 24โ is allowed and seeks a variance from sections 10.09(B) Parking Setbacks (6 counts) and 10.08(C) Driveways Width.

ZBA2022-121: 153 Bemis Savoie Road, Residential-Suburban Low Density Zoning District, Ward 12
Applicant proposes to construct a two-family dwelling in the R-S zoning district with buildable lot area of 15,208 SF where 40,000 SF is required, with a front yard setback of 10โ where 50โ is required, with a side yard setback of 10โ where 30โ is required, with three stories where 2.5 stories is allowed and with two parking spaces on the driveway within the required minimum front yard setback where only one parking space is allowed from sections 5.10(A)5 Two Family Dwelling, 6.01 Minimum Buildable Lot Area, 6.03(A) Front Yard Setback, 6.03(C) Side Yard Setback, 6.05 Height in Stories and 10.09(B) Parking Setbacks.

ZBA2022-115: 80 Merrimack Street, Central Business Zoning District, Ward 3
Applicant proposes to construct a 55-unit multi-family dwelling on a 12,600 SF lot where 18,600 SF minimum buildable lot area is required and with a rear yard setback where 20โ is required and seeks a variance from section 8.04 Minimum Buildable Lot Area for Multi-Family Dwellings.

ZBA2022-122: 738 South Beech Street, Residential One Family High-Density Zoning District, Ward 9
Applicant proposes to construct an 8โ x 16โ covered porch with a 12โ side yard setback where 20โ is required and seeks a variance from section 6.03(C) Side Yard Setback.
ZBA2022-123: 97 State Street, Urban Multifamily Zoning District, Ward 3
Applicant proposes to extend a previously granted extension of variance ZBA2018- 102 for two additional years and seeks a variance from section 14.02(B)4 Extension of Variance for Two Additional Years. For more detail, see Project Application.
WHAT ARE ZONING DISTRICTS?
You will notice that when a property is reviewed by the Planning Board, the Zoning District is noted. So what is a Zoning District? Zoning Districts are land use categories that establish specific guidelines for activities and uses when developing land. Zoning districts and land use guidelines are uses are laid out in Manchester’s Zoning Ordinance.
If you would like to dig into this further and look at the zones across the city, there is a one-page zoning map available on the City of Manchester website as well as aย detailed zoning map.