
ZONING BOARD PUBLIC HEARING
The Zoning Board will meet on Thursday, March 12 at 6 p.m. and the following cases will be heard. If you cannot make the meeting in person, it will be broadcast live on Manchester Public Television, Channel 22. The agenda is available online.
NOTE: The cityโs new zoning ordinance came into effect on March 1. However, since the following applications were submitted prior to March 1, the old zoning districts are included here for reference.

NOTE: This application has been postponed until April 9, 2026.
ZBA2026-003: 185 Woodland Avenue and Crystal Street, Residential One Family High Density District, Ward 5
Continued from February 12, 2026. Applicant has proposed to construct a planned development consisting of five six-unit townhouse dwellings and two eight-unit townhouse dwellings. There would be a total of 46 dwelling units, with lot frontage and width of 40โ where 150โ is required, with two buildings with 11โ side yard setbacks and one building with a 12.5โ setback where 20โ is required. The proposed buildings are three stories in height where 2.5 stories are allowed, where the buildings are 40โ 10โ in height where 35โ is allowed, with parking in the front yard and without the required 10โ landscape buffer, and with a mail station accessory structure in the front yard. Applicant seeks a variance from Zoning Ordinance Sections 5.10(A)2 Single-Family Attached Townhouse Dwellings, 6.02 Minimum Lot Frontage and Width (2 counts), 6.03(C) Side Yard Setback (3 counts), 6.05 Height in Feet and Height in Stories (16 counts), 10.09(B) Parking Setbacks, 10.07(K)4 Parking Screening, 10.07(G) Landscaping and 8.29(A) Accessory Structures and Uses.

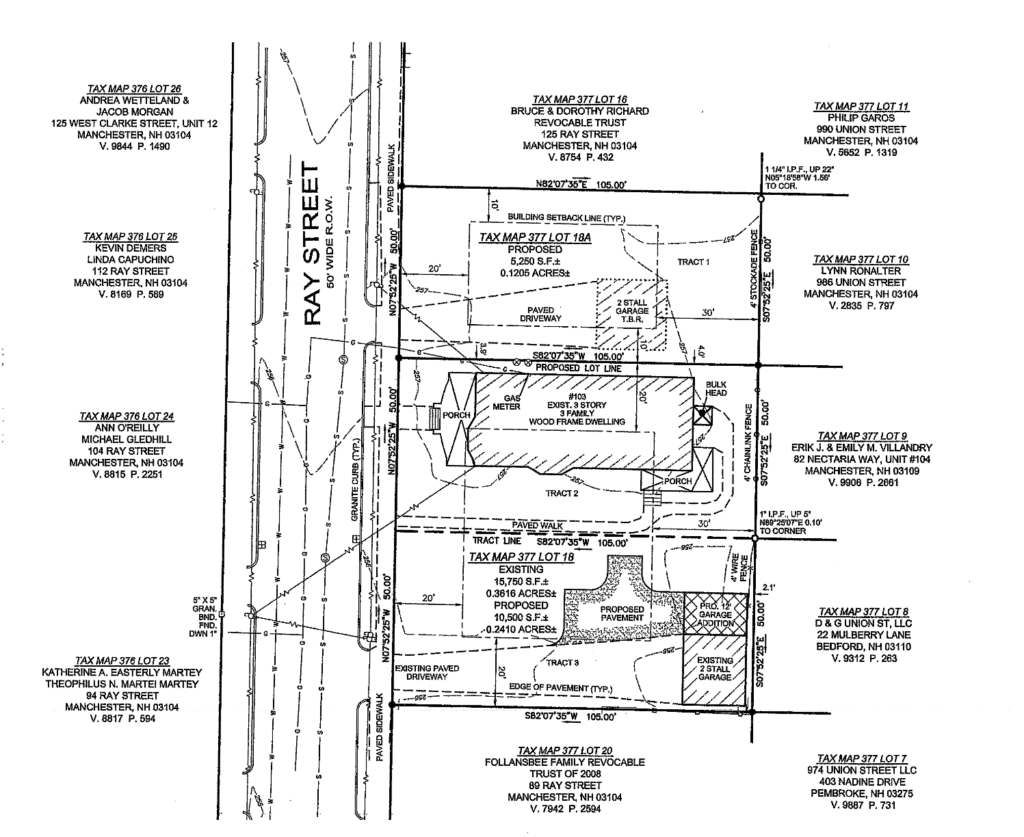
ZBA2026-010: 103 Ray Street, Residential One Family High Density District, Ward 1
Applicant has proposed to subdivide the parcel to create one new buildable lot. The proposed Lot 18 would remain improved with a three-family dwelling on a lot with 10,500 SF where 15,000 SF is required. That lot would have 100โ of lot frontage and width where 150โ is required, with a side yard setback of 3.9โ where 20โ is required and construct a 12โ x 18โ addition to a detached garage 2.1โ from the rear lot line where 4โ is required. The proposed Lot 18A would have 5,250 SF of buildable land area where 7,500 SF is required. There would be 50โ of lot frontage and width where 75โ is required. Applicant seeks a variance from Zoning Ordinance Sections 6.01 Minimum Buildable Lot Area, 6.02 Minimum Lot Frontage and Width (2 counts), 6.03(C) Side Yard Setback and 8.29(A)3 Accessory Structures and Uses for Lot 18 and 6.01 Minimum Buildable Lot Area and 6.02 Minimum Lot Frontage and Width (2 counts) for Lot 18A.

ZBA2026-011: 90-232 Eastern Avenue, Residential Suburban-Multifamily District, Ward 4
Applicant has proposed to construct an 8โ high fence in the side yard where 6โ is allowed. The purpose is to enclose a pool area serving a six-building multi-family residential planned development. Applicant seeks a variance from Zoning Ordinance Section 8.27(B) Fences and Walls.

ZBA2026-012: 831 Chestnut Street, Residential One Family High Density District, Ward 1
Applicant has proposed to establish a bed and breakfast use within a single-family dwelling on a lot with 5,553 SF of buildable lot area where 15,000 SF is required. The lot would have frontage and width of 49.57โ where 150โ is required, with side yard setbacks of 0โ to the dwelling. There would be a 5โ to a 9โ x 12โ deck constructed without benefit of a permit where 20โ is required in both instances. Applicant seeks a variance from Zoning Ordinance Sections 5.10(H-3)2 Bed & Breakfast, 6.01 Minimum Buildable Lot Area, 6.02 Minimum Lot Frontage and Width (2 counts), 6.03(C) Side Yard Setback and 8.29(C) Accessory Structures in the Rear Yard.

ZBA2026-013: 79 Ray Street, Residential One Family High Density District, Ward 1
Applicant has proposed to change a non-conforming use of a two-family dwelling to a non-conforming use of a bed and breakfast by Special Exception. Applicant seeks a Special Exception in accordance with Section 11.04(G) Criteria for Change or Expansion of Non-Conforming Uses.

ZBA2026-014: 1895 South Willow Street, General Business District, Ward 8
Applicant has proposed to expand a sign allowed by variance case ZBA2025-022. The variance case allowed a 128 SF free-standing sign 40.9โ from another free-standing sign on an adjacent lot where 150โ is required, by adding a 5โ x 12โ electronic message center sign. Applicant seeks a variance from Zoning Ordinance Section 9.09(A)1 Signs.

ZBA2026-015: 247 West Mitchell Street, Residential Two Family District, Ward 9
Applicant has proposed to create a new dwelling unit resulting in a three-family dwelling on a lot with 9,444 SF of buildable lot area where 10,000 SF is required. The proposed lot would have a frontage and width of 78.3โ where 100โ is required, with a side yard setback of 3.7โ where 20โ is required. It would create a third parking space that requires backing out onto a public way. Applicant seeks a variance from Zoning Ordinance Sections 5.10(A)6 Multi-Family Dwelling, 6.01 Minimum Buildable Lot Area, 6.02 Minimum Lot Frontage and Width (2 counts), 6.03(C) Side Yard Setback and 10.07(D) Parking Maneuvering.

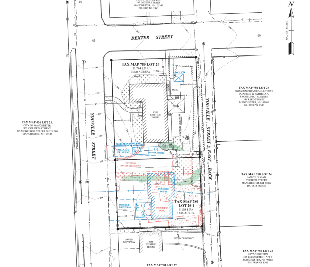
ZBA2026-016: 385 Youville Street, Residential One Family High Density District, Ward 11
Applicant has proposed to maintain a 9โ x 11โ pavilion accessory structure on a corner lot 18.8โ from the street lot line where 20โ is required. Applicant seeks a variance from Zoning Ordinance Section 8.29(A) Accessory Structures and Uses.
PLANNING BOARD UPDATES
The Planning Board met on Thursday, March 5 for a public hearing. No cases were decided. If you missed the meeting, it is available on-demand via Manchester Public Television.