City Works is a regular feature designed to provide a preview of upcoming Planning and Zoning Board Meetings.
ZONING BOARD UPDATES
The Zoningย Board held their public hearing on Thursday, March 9 and the following variances were granted. If you missed the meeting, you may watch itย on-demand.
- ZBA2022-161: 235-237 Harvard Street
- ZBA2023-008: Orange and Pearl Street Municipal Parking Lot
- ZBA2023-012: 98 Sherburne Street
- ZBA2023-010: Biron Street
- ZBA2023-013: 49 Pine Island Road
- ZBA2023-014: 95 Villa Street
- ZBA2023-015: 456 Union Street
PLANNING BOARD
This week’s meeting will start with a special presentation from Max Latona of the Center of Ethics in Society, Saint Anselm College. The Center has partnered with New Hampshire Housing, the NH Department of Business and Economic Affairs and the State of NH Office of Planning & Development to create a statewide Zoning Atlas that will provide a critical resource to understand the zoning districts within our state. For more information, go to: New Hampshire Zoning Atlas โ National Zoning Atlas
At the last Planning Board meeting, the following cases were approved. If you missed the meeting, it is available on-demand.
- CU2022-034, CU2022-035 & SP2022-024: 581 Bridge Street
- S2023-001: 1208 Hanover St.
- SP2021-020: 100 McGregor St.
- SP2021-21: 284 Notre Dame Ave
- SP2022-023: South Mammoth Road/Glacier Way
- IMP 2023-001: 73 Hanover St
- IMP 2023-002: 409 Elm St.
The Planning Board will meet on Thursday, April 6ย at 6 p.m. If you cannot make the meeting in person, it will be broadcast live on Manchester Public Television, Channel 22. The agenda is available on-line. The following cases will be presented:
CU2023-003: 1425 Belmont Street, Residential One Family High Density Zoning District, Ward 1
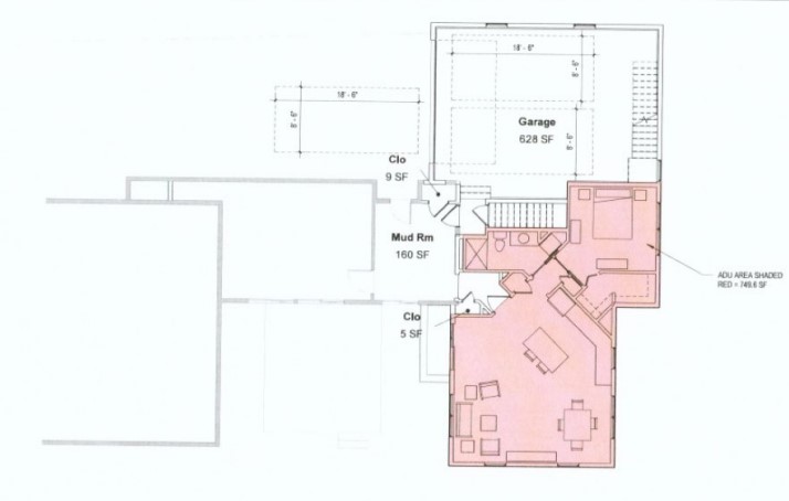
Applicant is requesting a conditional use permit application to construct an approximately 830 SF accessory dwelling unit within the rear portion of an existing single-family residence.

CU2023-004: 134 Mast Road, Residential One Family High-Density Zoning District, Ward 10
Applicant is requesting a conditional use permit application to construct an approximately 750 SF accessory dwelling unit within an existing single-story detached garage in conjunction with an existing single-family residence.

S2023-003: ย 112 Riverdale Avenue, Residential One Family High Density Zoning District, Ward 9
Applicant is presenting a subdivision application for the creation of one new buildable lot of 16,708 SF, with frontage on Riverdale Avenue.

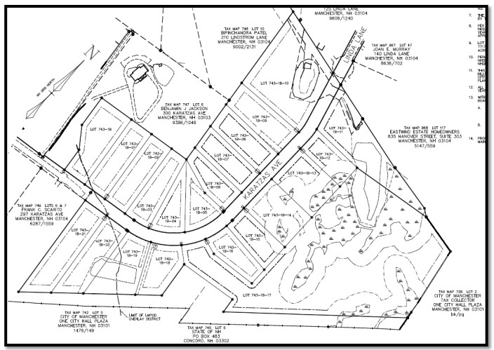
S2023-002: Karatzas Avenue & Linda Lane, Residential One Family Medium Density Zoning District / Lake Massabesic Protection Overlay District , Ward 6
Applicant is presenting a subdivision application to create 21 new buildable lots for a total of 22 lots and a new public road,

CU2023-005 & SP2023-002: Orange & Pearl Streets (aka Pearl Street Parking Lot), Central Business Zoning District, Ward 3
Applicant is seeking a conditional use permit and will be presenting a site plan application for a proposed multi-level mixed use development, including to construct five affordable, residential dwelling units on the ground floor of a mixed-use development, including 366 residential units, 654 vehicle spaces in a garage/deck, approximately 3,000 SF of commercial space, and associated site improvements
