Planning Board renders decisions, Zoning to rehear request for 100 dwelling units at 1228-1230 Elm Street

City Works is a regular feature designed to provide a preview of upcoming Planning and Zoning and Board Meetings.


ZONING BOARD

The Zoning Board will meet on Thursday, January 12 and the following cases will be heard. The meeting will be available to watch on Manchester Public Television Channel 22. The full Agenda and Project Applications are available for each of these projects. If you are not able to attend a public hearing and would like to comment on a project, you may send an email to zoningboard@manchesternh.gov.

ZBA2023-001: 1228-1230 Elm Street, Central Business Zoning District, Ward 3
This case is a rehearing of case ZBA2022-138 which was granted a variance at the October 13, 2022 hearing. The original hearing is available on-demand and the original application by Brady Sullivan can be found here.

See Project Application for additional detail.

Applicant proposes to create 100 dwelling units in an existing building on a lot with 19,612 SF where 56,500 SF is required and seeks a variance from section 8.04 Minimum Buildable Lot Area.


ZBA2022-156:241 Cartier Street, aka 74 Putnam Street, Urban Multifamily Zoning District, Ward 11

See Project Application for additional detail.

Applicant proposes to establish a professional office use in a space formerly used for commercial pet grooming and seeks a variance from section 5.10(H-1)2 Business and Professional Offices.


ZBA2022-157: 500 N. Commercial Street, Amoskeag Millyard Mixed Use (Amoskeag Housing Overlay) Zoning

See Project Application for additional detail.

Applicant proposes to maintain a 12 SF projecting sign on the front of the building for an upper-floor tenant and seeks a variance from section 9.09(A)3 Signs.


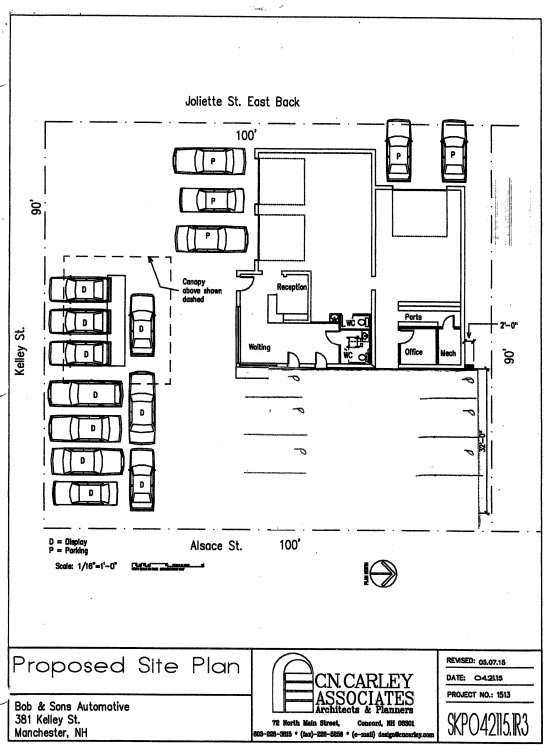
ZBA2022-158:ย  321 Kelley Street, Neighborhood Business Zoning District, Ward 11

See Project Application for additional detail.

Applicant proposes to maintain the use of vehicle sales and the display area for 10 vehicles, with 7 spaces within 4โ€™ of the street lot line, as well as maintain four signs on the canopy and one sign on the building that exceed the allowable number of signs and area and seeks a variance from sections 5.10(I)1 Sale of Motor Vehicles, 10.09(A) Parking Setbacks and 9.09(A)2 Signs.


ZBA2022-159: 136 Chauncey Avenue, Residential One Family Medium Density Zoning District, Ward 1

See Project Application for additional detail.

Applicant proposes to construct a 912 SF accessory dwelling unit above an attached garage where 750 SF is allowed, create a front yard parking space and a driveway width of 33โ€™ where 24โ€™ is allowed and seeks a variance from sections 8.26(C) Accessory Dwelling Unit, 10.09(B) Parking Setbacks and 10.08(C) Driveway Width.


ZBA2022-160: 21 Mack Avenue, Residential One Family High Density Zoning District, Ward 9

See Project Application for additional detail.

Applicant proposes to establish a building contractorโ€™s yard with an 8โ€™ solid fence enclosing a 25โ€™ x 40โ€™ storage area for equipment, on a lot with frontage and width of 101โ€™ where 150โ€™ is required, without pavement for the driveway, without the required on-site maneuvering area requiring backing out into a public way, and without the required 50โ€™ limited activity buffer from adjacent residential lots and seeks a variance from sections 5.10(C)2 Building Contractorโ€™s Yards, 6.02 Lot Frontage and Width (2 counts), 10.07(E) Parking Paving, 10.07(D) Parking Maneuvering, 10.02(F) Business Parking in a Residential District and 6.08(B)7 Screening Buffers.


PLANNING BOARD

LIMITED BUSINESS MEETING

The Planning Board met on Thursday, January 5 and the following cases were decided in a Limited Business Meeting. The meeting is available to watch on-demand.

  • IMP2022-010 253 Lake Avenue: A request to grant total relief from the School Impact Fee was denied; however, the Board did vote to reduce the fee from $3,125 to $625.
  • CU2022-033: 1345 Front Street: Approved with conditions.

 


Sign up for the FREE daily newsletter and never miss another thing!

Subscribe

* indicates required

Support Ink Link