See what’s on the agenda: Board of Mayor & Aldermen meet Tuesday, Planning Board meets Wednesday

City Works is a regular feature designed to provide a preview of upcoming city meetings including, but not limited to, Planning, Zoning and Board of Mayor and Aldermen.  


HERITAGE COMMISSION

The Heritage Commission met on Tuesday, April 26 and the following items were discussed. If you missed the meeting or you would like to see more details, the meeting is available on-demand.

  • 70 Market Street: The commission supported the applicant’s sign request pending any necessary approvals from the Zoning Board.
  • Arms Park Stairs Mural: The commission supports the intent of the project and will send a letter to the Board of Mayor and Aldermen in support of this project.

BOARD OF MAYOR AND ALDERMEN

The Board of Mayor and Aldermen will meet on Tuesday, May 3. The following meetings are scheduled. Click on meeting title for a link to the detailed agenda and associated documentation.

5 P.M. Committee on Bills on Second Reading

5:15 P.M. Committee on Community Improvement

5:45 P.M. Committee on Public Safety, Health and Traffic

6:30 P.M. Committee on Human Resources/Insurance

7 P.M. Board of Mayor and Aldermen


PLANNING BOARD

This week, the Planning Board will meet on Wednesday, May 4 at 6 P.M. The agenda may be found here and the project applications are also available for review on-line. If you would like to comment for or against any project and cannot make the meeting, you may send an email to planningboard@manchesternh.gov or leave a voicemail at 603.792.6737.

Building Photo

CU2022-011 & IMP2022-004: 625 Douglas Street, Residential Two-Family Zoning District.

Applicants seek a conditional use permit application for a proposed accessory dwelling unit of 744 SF above a detached two-car garage. Applicant also seeks approval to waive the $1,530 school impact fee.


Building Photo

S2022-001: 45 Windsor Avenue, Residential One Family Medium Density Zoning District.

Applicant seeks approval for a subdivision to create two lots of 34,089 SF (Lot 20), and 22,000 SF (Lot 20B).


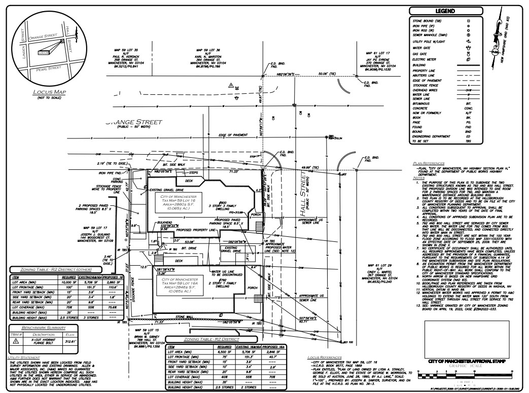
S2022-003: 792 and 800 Hall St., Residential Two-Family Zoning District.

Applicant seeks a single lot of record, resulting in two new lots of 2,860 SF (Lot 16A) and 2,846 SF (Lot 16) respectively.


Building Photo

CU2022-009 & SP2022-006: 25 Lowell St., Central Business Zoning District.

Applicant seeks a conditional use permit and a change of use site plan application to convert a five-story office building into a 50-unit, 55,000 SF apartment building with residential units on all floors.


SP2022-007: Candia Road, Residential One-Family High Density Zoning District.

Energy North Gas seeks approval for a site plan application to construct a 920 SF gas utilities building and an associated 64 SF data accessory building.


CU2022-012: 190 Zachary Road, General Industrial / Industrial and Residential-Suburban Low-Density Zoning District.

Application seeks a conditional use permit application to reduce the number of on-site parking spaces from 156 spaces required to 95 spaces provided in order to build additions to an existing manufacturing and warehousing building in the as well as a site plan application to build 34,500 SF of additional warehouse space and 3,500 SF of an elevated covered storage area onto an existing manufacturing and warehousing building, and associated site improvements.


Building Photo

SP2022-009: 48 Brook Street, Urban Multifamily Zoning District.

Applicant seeks approval of a change of use site plan to convert an existing mixed-use office building into a 10-unit, multi-family apartment building.


Building Photo

CU2022-013 and PDSP2022-003: 525 Hooksett Road, General Business and Residential One-Family High-Density Zoning Districts.

Application requests a conditional use permit application to reduce the required on-site parking for the development of two drive-thru restaurants (Taco Bell and Aroma Joe’s) along with a site plan and planned development application for the development of two drive-thru restaurants of 2,550 SF and 833 SF respectively, along with site improvements, on a current vacant parcel (next to Mr. Mac’s).


PDSP2022-004: 1500 South Willow Street, General Business Zoning District.

Application is requesting approval of a site plan and planned development application to construct a BJ’s Restaurant/Brew House of approximately 7,662 SF on the same lot as an anchor tenant in the Mall of New Hampshire


PDSP2022-005, 685 Coolidge Ave,

Applicant is submitting a request to amend a previously approved planned development and site plan to change the architecture of the houses.


LIMITED BUSINESS MEETING: The following case will be discussed and a decision will be rendered during this limited business meeting.

  • PDSP2022-005: 685 Coolidge Avenue

 


Sign up for the FREE daily newsletter and never miss another thing!

Subscribe

* indicates required

Support Ink Link