City Works is a regular feature designed to provide a preview of upcoming Planning and Zoning Board Meetings.
PLANNING BOARD PUBLIC HEARING
The Planning Board will meet on Wednesday, May 3ย at 6 p.m. If you cannot make the meeting in person, it will be broadcast live on Manchester Public Television, Channel 22. The agenda is available on-line. The following cases will be presented:
Properties located between Karatzas Avenue and Linda Lane, Residential One Family Medium Density Zoning District &ย Lake Massabesic Protection Overlay District, Ward 6.

The Applicant has submitted a subdivision application to create 21 new buildable lots for a total of 22 lots, and a new public road. This case has been continued from an earlier meeting with a request from the Board for the applicant to submit additional traffic information.
IMP2023-003: Properties located between Smyth Road and Radburn Street, Residential One Family Medium Density Zoning District, Ward 2. (Applicant is requesting a postponement to June 1.)
Applicant is requesting a reduction in all school and fire impact fees to zero for a conditionally approved planned development (PDSP2022-002) consisting of 305 dwelling units. See Project Application for additional detail.
CU2023-006: 561 Gold Street, General Industrial / Industrial Zoning District, Ward 9.

Applicant is requesting a Conditional Use Permit for the ability to operate a commercial retail business (Julianoโs Pools).
CU2023-007: 1165 River Road, Residential One Family Medium Density Zoning District, Ward 1.

Applicant is requesting a Conditional Use Permit for the construction of a 750 SF attached ADU within the sideyard of a lot of record.
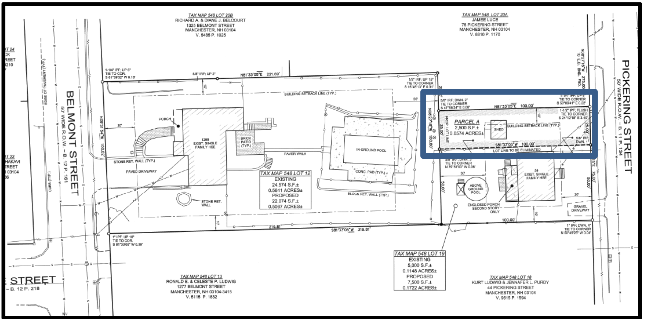
S2023-004: 1295 Belmont Street & 54 Pickering Street, Residential One Family High-Density Zoning District, Ward 2.

Applicant is submitting subdivision application to adjust the lot lines between 1295 Belmont Street (Map 548, Lot 12) and 54 Pickering Street (Map 548, Lot 19) in order to make the lot at 54 Pickering Street a conforming lot of record.
CU2023-008 & SP2023-003: 8 Dutton Street, Urban Multifamily Zoning District, Ward 4.

Applicant is requesting a conditional use permit application to reduce on-site parking for a 9-unit residential apartment building from 14 spaces required to three (3) spaces provided. Applicant is also submitting a site plan application to construct a 9-unit residential in place of where a fire-damaged building had previously existed.
CU2023-009 & SP2023-004: 99 Manchester Street, Central Business District, Ward 3.

Applicant is requesting a conditional use permit application for congregate housing in the Central Business District. Application is also submitting change of use site plan application for a proposed congregate housing facility on the 2-3rd floors, with commercial space on the ground floor
PLANNING BOARD BUSINESS MEETING
The following cases will be discussed during a limited business meeting:
- CU2023-006: 561 Gold Street
- CU2023-007: 1165 River Road
The Planning Board met on April 20 and the following cases were approved. If you missed the meeting, it is available on-demand.
- S2023-003: 112 Riverdale Avenue: Approved with waivers.
- CU2023-005 & SP2023-002, Orange and Pearl Streets: Application approved.
ZONING BOARD UPDATES
The Zoningย Board met Thursday, April 13 and the following variances were requested. A recording of the meeting is available here via MPTV on demand.
- ZBA2022-161 235-237 Harvard Street: Tabled, new abutter notices will be sent when rescheduled.
- ZBA2021-025 10,000 South Willow Street: Variance granted, extension granted to October 8, 2023.
- ZBA2023-018 749 East Industrial Park Drive: Variance granted.
- ZBA2023-019 130 Wilson Street: Vvariance granted. A stipulation was added that landscaping must be provided as indicated on the plan and an 8′ fence must be erected around the dumpster. Plans must also show building-compliant separation of commercial and residential uses.
- ZBA2022-159 136 Chauncey Avenue: Variance granted.
- ZBA2023-023 54 Readey Street: Variance denied.
- ZBA2023-025 1165 River Road: Variance granted.
- ZBA2023-011 55 Edward J. Roy Drive: Variance denied.
- ZBA2023-027 1 Sundial Avenue: Variance granted.
- ZBA2023-028 24 Cypress Street: Variance granted.
- ZBA2023-030 431 East High Street: Variance granted. Stipulation added that the parking layout must be in accordance with the plan submitted at the April 13, 2023 hearing.
- ZBA2023-021 1362 River Road: Variance granted.
- ZBA2023-031 297 South Willow Street: Variance granted.
- ZBA2023-033 34 Elm Street: Variance granted.
- ZBA2023-016 8-10 Dutton Street: Variance granted.