Zoning board to meet Wednesday, continue discussion on Torrington Properties development

City Works is a regular feature which endeavors to provide a preview of projects coming before the Planning Board, Zoning Board and Heritage Commission by posting agendas and relevant information to keep the public informed about what is happening.

ย  ย  ย  ย  ย  ย  ย  ย  ย  ย  ย  ย  ย  ย  ย  ย  ย  ย  ย  ย  ย  ย  ย  ย  ย  ย  ย  ย  ย  ย  ย  ย  ย  ย  ย  ย  ย  ย  ย  ย  ย  ย  ย  ย  ย  ย  ย  ย  ย  ย  ย  ย  ย  ย  ย  ย  ย  ย  ย  ย  ย  ย  ย  ย  ย  ย  ย  ย  ย  ย  ย  ย  ย  ย  ย  ย  ย  ย  ย  ย  ย 

PLANNING BOARD UPDATES

The Planning Board met on Thursday, November 4 and the following cases were decided during a Limited Business Meeting. The meeting will be available on-demand.

  • CU2021-018:ย  796 Montgomery Street, application approved.
  • CU2021-017, SP2021-031: 323 Manchester Street, application approved.
  • PDSP2021-004: 170 Baker Street, application approved.

Please note that the Planning Board heard and decided all cases submitted for the month of November; therefore, there will be no meeting on Thursday, November 18.

ย  ย  ย  ย  ย  ย  ย  ย  ย  ย  ย  ย  ย  ย  ย  ย  ย  ย  ย  ย  ย  ย  ย  ย  ย  ย  ย  ย  ย  ย  ย  ย  ย  ย  ย  ย  ย  ย  ย  ย  ย  ย  ย  ย  ย  ย  ย  ย  ย  ย  ย  ย  ย  ย  ย  ย  ย  ย  ย  ย  ย  ย  ย  ย  ย  ย  ย  ย  ย  ย  ย  ย  ย  ย  ย  ย  ย  ย  ย  ย  ย ย 

ZONING BOARD

The Zoning Board will be meeting on Wednesday, November 10 at 6 p.m. The meeting will be broadcast live on Channel 22. A full copy of the meeting agenda can be found here. Project applications and other materials for this meeting are available online.

ย  ย  ย  ย  ย  ย  ย  ย  ย  ย  ย  ย  ย  ย  ย  ย  ย  ย  ย  ย  ย  ย  ย  ย  ย  ย  ย  ย  ย  ย  ย  ย  ย  ย  ย  ย  ย  ย  ย  ย  ย  ย  ย  ย  ย  ย  ย  ย  ย  ย  ย  ย  ย  ย  ย  ย  ย  ย  ย  ย  ย  ย  ย  ย  ย  ย  ย  ย  ย  ย  ย  ย  ย  ย  ย  ย  ย  ย  ย  ย  ย ย 

Building Photo

ZBA2021-083: 1405 River Road, Residential One Family Medium Density Zoning District

Applicant proposes to construct a rear deck and detached garage resulting in lot coverage of 49.3% where 40% is allowed, where the detached garage is located partially in the side yard with a side yard setback of 1.4โ€™ where 20โ€™ is required and has a height of 23.5โ€™ where 15โ€™ is allowed, where the deck has a rear yard setback of 14.8โ€™ where 30โ€™ is required and a side yard setback of 15.2โ€™ where 20โ€™ is required, and where the proposed deck results in an existing shed being 1โ€™ into the side yard where it does not meet side yard setbacks and seeks a variance from sections 6.04 Lot Coverage, 8.29(A) Accessory Structures in the Side Yard (3 counts), 6.03(B) Rear Yard Setback and 6.03(C) Side Yard Setback.

ย  ย  ย  ย  ย  ย  ย  ย  ย  ย  ย  ย  ย  ย  ย  ย  ย  ย  ย  ย  ย  ย  ย  ย  ย  ย  ย  ย  ย  ย  ย  ย  ย  ย  ย  ย  ย  ย  ย  ย  ย  ย  ย  ย  ย  ย  ย  ย  ย  ย  ย  ย  ย  ย  ย  ย  ย  ย  ย  ย  ย  ย  ย  ย  ย  ย  ย  ย  ย  ย  ย  ย  ย  ย  ย  ย  ย  ย  ย  ย  ย ย 

Building Photo

ZBA2021-116: 324 Hanover Street, Urban Multifamily Zoning District
Applicant is appealing the administrative decision of the Plans Examiner declining to issue a building permit for construction of a new multi-family building on the applicantโ€™s property situated at 324 Hanover street on the basis that case #ZBA2021-019 extended the start date for the project to August 7, 2019 and the two year duration to complete construction had expired prior to the permit application, requiring the applicant to seek additional relief.

ย  ย  ย  ย  ย  ย  ย  ย  ย  ย  ย  ย  ย  ย  ย  ย  ย  ย  ย  ย  ย  ย  ย  ย  ย  ย  ย  ย  ย  ย  ย  ย  ย  ย  ย  ย  ย  ย  ย  ย  ย  ย  ย  ย  ย  ย  ย  ย  ย  ย  ย  ย  ย  ย  ย  ย  ย  ย  ย  ย  ย  ย  ย  ย  ย  ย  ย  ย  ย  ย  ย  ย  ย  ย  ย  ย  ย  ย  ย  ย  ย ย 

ZBA2021-122: 78 Parcels Between Smyth Road and Radburn Street, located on Tax Maps 466, 467, 469, 470 and 715, Residential One Family Medium Density Zoning District (Torrington Properties)

Applicant proposes to construct a 305 unit planned development comprised of three multi-family dwellings and a clubhouse with amenities on an area of approximately 35 acres comprised of 78 different parcels, including 14 parcels on Tax Map 469, Lots 1 through 12, 8 parcels on Tax Map 466, Lots 1 through 12, 34 parcels on Tax Map 467, Lots 1 through 33, 21 parcels on Tax Map 470, Lots 1 through 18 and the parcel known as Tax Map 715, Lot 11, where the buildings will be four stories in height where 2 ยฝ stories are allowed and 56.6โ€™ in height where 35 feet is allowed and seeks a variance from sections 5.10(A)6 Multi-Family Dwellings, 6.05 Height inย  Stories and 6.05 Height in Feet.ย ย 

ย  ย  ย  ย  ย  ย  ย  ย  ย  ย  ย  ย  ย  ย  ย  ย  ย  ย  ย  ย  ย  ย  ย  ย  ย  ย  ย  ย  ย  ย  ย  ย  ย  ย  ย  ย  ย  ย  ย  ย  ย  ย  ย  ย  ย  ย  ย  ย  ย  ย  ย  ย  ย  ย  ย  ย  ย  ย  ย  ย  ย  ย  ย  ย  ย  ย  ย  ย  ย  ย  ย  ย  ย  ย  ย  ย  ย  ย  ย  ย  ย ย 

Building Photo

ZBA2021-123: 108 Arah Street, Residential One Family Medium Density Zoning District

Applicant proposes to construct a 13โ€™6โ€ by 24โ€™ two-story addition with a 10โ€™6โ€ x 29โ€™6โ€ rear deck with a 13โ€™ side yard setback where 20โ€™ is required and seeks a variance from 6.03(C) Side Yard Setback.

ย  ย  ย  ย  ย  ย  ย  ย  ย  ย  ย  ย  ย  ย  ย  ย  ย  ย  ย  ย  ย  ย  ย  ย  ย  ย  ย  ย  ย  ย  ย  ย  ย  ย  ย  ย  ย  ย  ย  ย  ย  ย  ย  ย  ย  ย  ย  ย  ย  ย  ย  ย  ย  ย  ย  ย  ย  ย  ย  ย  ย  ย  ย  ย  ย  ย  ย  ย  ย  ย  ย  ย  ย  ย  ย  ย  ย  ย  ย  ย  ย ย 

ZBA2021-125: 525 Hooksett Road, General Business and Residential One Family District, High-Density Zoning Districts

Applicant proposes to construct two restaurants with drive-through service where one is 2,500 SF with seating and the other is 850 SF with no seating, where the second restaurant use is partially within the R-1B zoning district with a drive-through window, an exterior speaker system, vehicle stacking and a dumpster all within the 50โ€™ limited activity buffer, where the 10โ€™ landscape buffer is not maintained in the southeast corner of the lot, and with a proposed free-standing sign within 150โ€™ of another free-standing sign on an adjacent lot in and seeks a variance from sections 5.10(G)6 Restaurant up to 5,000 SF with drive-through, 6.08(B) Screening Buffers (4 counts), 10.07(G) Landscaping and 9.09(A)1 Signs.

ย  ย  ย  ย  ย  ย  ย  ย  ย  ย  ย  ย  ย  ย  ย  ย  ย  ย  ย  ย  ย  ย  ย  ย  ย  ย  ย  ย  ย  ย  ย  ย  ย  ย  ย  ย  ย  ย  ย  ย  ย  ย  ย  ย  ย  ย  ย  ย  ย  ย  ย  ย  ย  ย  ย  ย  ย  ย  ย  ย  ย  ย  ย  ย  ย  ย  ย  ย  ย  ย  ย  ย  ย  ย  ย  ย  ย  ย  ย  ย  ย ย 

Building Photo

ZBA2021-126: 123 Edouard Street, Residential One Family District, High Density Zoning District

Applicant proposes to construct on a corner lot a 5โ€™ x 30โ€™ farmers porch with a front yard setback of 14โ€™ 3โ€ and a street yard setback of 19โ€™ where 20โ€™ is required, construct a rear shed dormer with a street yard setback of 19โ€™ where 20โ€™ is required, and maintain a front yard parking space within 4โ€™ of a building and seeks a variance from sections 6.03(A) Front Yard Setback, 6.03(A) Street Yard Setback and 10.09(B) Parking Setbacks (3 counts).

ย  ย  ย  ย  ย  ย  ย  ย  ย  ย  ย  ย  ย  ย  ย  ย  ย  ย  ย  ย  ย  ย  ย  ย  ย  ย  ย  ย  ย  ย  ย  ย  ย  ย  ย  ย  ย  ย  ย  ย  ย  ย  ย  ย  ย  ย  ย  ย  ย  ย  ย  ย  ย  ย  ย  ย  ย  ย  ย  ย  ย  ย  ย  ย  ย  ย  ย  ย  ย  ย  ย  ย  ย  ย  ย  ย  ย  ย  ย  ย  ย ย 

Building Photo

ZBA2021-124: 52 Island Pond Road, Residential One-Family District, High-Density Zoning Districts

Applicants propose to construct a 26โ€™x36โ€™ two-story, three-stall garage with a height of 24.6โ€™ where 20โ€™ is allowed and seek a variance from section 8.29(A)3 Accessory Structures and Uses.

ย  ย  ย  ย  ย  ย  ย  ย  ย  ย  ย  ย  ย  ย  ย  ย  ย  ย  ย  ย  ย  ย  ย  ย  ย  ย  ย  ย  ย  ย  ย  ย  ย  ย  ย  ย  ย  ย  ย  ย  ย  ย  ย  ย  ย  ย  ย  ย  ย  ย  ย  ย  ย  ย  ย  ย  ย  ย  ย  ย  ย  ย  ย  ย  ย  ย  ย  ย  ย  ย  ย  ย  ย  ย  ย  ย  ย  ย  ย  ย  ย ย 

Building Photo

ZBA2021-128: 94 Appleton Street, Residential One Family District, High Density Zoning District

Applicant proposes to store two trailers on a lot where only one is allowed, where both are within the required 20โ€™ side yard setback and maintain a storage container in the rear yard within 4โ€™ from the side lot line and seeks a variance from sections 5.11(K)2 Accessory Storage of Trailer, 8.29(A)2 Accessory Structures and Uses in the side yard (2 counts) and 8.29(A)3 Accessory Structures and Uses in the rear yard.

ย  ย  ย  ย  ย  ย  ย  ย  ย  ย  ย  ย  ย  ย  ย  ย  ย  ย  ย  ย  ย  ย  ย  ย  ย  ย  ย  ย  ย  ย  ย  ย  ย  ย  ย  ย  ย  ย  ย  ย  ย  ย  ย  ย  ย  ย  ย  ย  ย  ย  ย  ย  ย  ย  ย  ย  ย  ย  ย  ย  ย  ย  ย  ย  ย  ย  ย  ย  ย  ย  ย  ย  ย  ย  ย  ย  ย  ย  ย  ย  ย ย 

 

ZBA2021-129: 100 Hitchcock Way, Civic-Hospital Zoning District

Applicant proposes to add four new free-standing signs for a total of nine free- standing signs and increase the size of one existing fee-standing sign and seeks a variance from section 9.09(A)1 Signs (5 counts).

ย  ย  ย  ย  ย  ย  ย  ย  ย  ย  ย  ย  ย  ย  ย  ย  ย  ย  ย  ย  ย  ย  ย  ย  ย  ย  ย  ย  ย  ย  ย  ย  ย  ย  ย  ย  ย  ย  ย  ย  ย  ย  ย  ย  ย  ย  ย  ย  ย  ย  ย  ย  ย  ย  ย  ย  ย  ย  ย  ย  ย  ย  ย  ย  ย  ย  ย  ย  ย  ย  ย  ย  ย  ย  ย  ย  ย  ย  ย  ย  ย ย 

Building Photo

ZBA2021-130: 760 Somerville Street, Residential Two Family Zoning district

Applicant proposes to construct an accessible ramp and a 5โ€™x5โ€™ deck with a 10โ€™ side yard setback where 20โ€™ is required and seeks a variance from section 6.03(C) side yard setback.

ย  ย  ย  ย  ย  ย  ย  ย  ย  ย  ย  ย  ย  ย  ย  ย  ย  ย  ย  ย  ย  ย  ย  ย  ย  ย  ย  ย  ย  ย  ย  ย  ย  ย  ย  ย  ย  ย  ย  ย  ย  ย  ย  ย  ย  ย  ย  ย  ย  ย  ย  ย  ย  ย  ย  ย  ย  ย  ย  ย  ย  ย  ย  ย  ย  ย  ย  ย  ย  ย  ย  ย  ย  ย  ย  ย  ย  ย  ย  ย  ย ย 

ZBA2021-082 1671 Brown Avenue, Residential One Family, High Density Zoning District

Applicant proposes to repurpose a former union hall by using 1,711 SF to create one new dwelling unit and using the remaining 1,711 SF to establish a nail salon, with business parking in a residential zoning district where the proposed parking lot is within 2โ€™ of a wetland where 25โ€™ is required, without parking bumpers for spaces within 10โ€™ of the property line, with an 8โ€™ landscaped perimeter around the western parking spaces where 10โ€™ is required, and with a proposed new accessible ramp with an 8โ€™ side yard setback where 10โ€™ is required and seeks a variance from sections 5.10(H-6)3 Beauty and Barber Shops, 10.02(F) Business parking in a Residential District, 6.09 Minimum Setback from Wetlands, 10.07(K)1 Parking Bumpers, 10.07(G) Landscaping and 6.03(C) Side Yard Setback.

ย  ย  ย  ย  ย  ย  ย  ย  ย  ย  ย  ย  ย  ย  ย  ย  ย  ย  ย  ย  ย  ย  ย  ย  ย  ย  ย  ย  ย  ย  ย  ย  ย  ย  ย  ย  ย  ย  ย  ย  ย  ย  ย  ย  ย  ย  ย  ย  ย  ย  ย  ย  ย  ย  ย  ย  ย  ย  ย  ย  ย  ย  ย  ย  ย  ย  ย  ย  ย  ย  ย  ย  ย  ย  ย  ย  ย  ย  ย  ย  ย ย 

Building Photo

ZBA2021-131: 168 Bryant Road, Residential Suburban, Low Density Zoning District

Applicant proposes to subdivide the property into two lots where proposed Lot 29 will remain improved with a single family dwelling with a side yard setback of 20.4โ€™ where 30โ€™ is required, with lot area of 18,315 SF where 40,000 SF is required, as well as with lot frontage and width of 90โ€™ where 150โ€™ is required, and where proposed Lot 29B will have lot area of 20,218 SF where 40,000 SF is required, lot frontage and width of 84.62โ€™ where 150โ€™ is required, and with a proposed front yard setback for future development of 25โ€™ where 50โ€™ is required and proposed side yard setbacks of 20โ€™ where 30โ€™ is required and seeks a variance from sections 6.03(C) Side Yard Setback, 6.01 Minimum Buildable Lot Area, 6.02 Minimum Lot Frontage and Width (2 counts) at Lot 29, 6.01 Minimum Buildable Lot Area, 6.02 Minimum Lot Frontage and Width (2 counts), 6.03(A) Front Yard Setback and 6.03(C) Side Yard Setback (2 counts).

ย  ย  ย  ย  ย  ย  ย  ย  ย  ย  ย  ย  ย  ย  ย  ย  ย  ย  ย  ย  ย  ย  ย  ย  ย  ย  ย  ย  ย  ย  ย  ย  ย  ย  ย  ย  ย  ย  ย  ย  ย  ย  ย  ย  ย  ย  ย  ย  ย  ย  ย  ย  ย  ย  ย  ย  ย  ย  ย  ย  ย  ย  ย  ย  ย  ย  ย  ย  ย  ย  ย  ย  ย  ย  ย  ย  ย  ย  ย  ย  ย ย 

Building Photo

ZBA2021-132: 621 Hevey Street, Urban Multifamily Zoning District

Applicant proposes to maintain the conversion from a three-family to a four-family dwelling with lot area of 5,000 SF where 6,500 SF is required, create parking for five vehicles within 4โ€™ of the lot line and with one parking space in the street yard and without the required 10โ€™ landscaped buffer and seeks a variance from sections 8.04 Minimum Buildable Lot Area, 10.09(B) Parking Setbacks and 10.07(G) Landscaping, in the rear yard.

ย  ย  ย  ย  ย  ย  ย  ย  ย  ย  ย  ย  ย  ย  ย  ย  ย  ย  ย  ย  ย  ย  ย  ย  ย  ย  ย  ย  ย  ย  ย  ย  ย  ย  ย  ย  ย  ย  ย  ย  ย  ย  ย  ย  ย  ย  ย  ย  ย  ย  ย  ย  ย  ย  ย  ย  ย  ย  ย  ย  ย  ย  ย  ย  ย  ย  ย  ย  ย  ย  ย  ย  ย  ย  ย  ย  ย  ย  ย  ย  ย ย 

Building Photo

ZBA2021-133: 212 London Street, Residential One Family, Medium Density Zoning District

Applicant proposes to maintain a driveway width of 28โ€™4โ€ where 24โ€™ is allowed and seeks a variance from section 10.08(C) Driveway Width.

ย  ย  ย  ย  ย  ย  ย  ย  ย  ย  ย  ย  ย  ย  ย  ย  ย  ย  ย  ย  ย  ย  ย  ย  ย  ย  ย  ย  ย  ย  ย  ย  ย  ย  ย  ย  ย  ย  ย  ย  ย  ย  ย  ย  ย  ย  ย  ย  ย  ย  ย  ย  ย  ย  ย  ย  ย  ย  ย  ย  ย  ย  ย  ย  ย  ย  ย  ย  ย  ย  ย  ย  ย  ย  ย  ย  ย  ย  ย  ย  ย ย 

ZBA 2021-134: 61-77 Stark Street, Urban Multifamily Zoning District

Applicant proposes to change the use of 1,332 SF of the building from a copy service to sales of general goods and small scale assembly and craftsman business and seek a variance from section 5.10(F)5 Sales of General Goods and Merchandise within an establishment of up to 8,000 SF and 5.10(D)7 Small Scale Assembly, Fabrication and Craftsman Business.

ย  ย  ย  ย  ย  ย  ย  ย  ย  ย  ย  ย  ย  ย  ย  ย  ย  ย  ย  ย  ย  ย  ย  ย  ย  ย  ย  ย  ย  ย  ย  ย  ย  ย  ย  ย  ย  ย  ย  ย  ย  ย  ย  ย  ย  ย  ย  ย  ย  ย  ย  ย  ย  ย  ย  ย  ย  ย  ย  ย  ย  ย  ย  ย  ย  ย  ย  ย  ย  ย  ย  ย  ย  ย  ย  ย  ย  ย  ย  ย  ย ย 

Building Photo

ZBA2021-136: 364 Oakland Ave, Residential One Family, Medium Density Zoning District

Applicant proposes to create two paved parking spaces in the street yard on a corner lot and maintain a 10โ€™x16โ€™ shed with setbacks of 2.2โ€™ and 3.9โ€™ to the side and rear lot lines where 4โ€™ is required and seeks a variance from sections 10.09(B) Parking Setbacks and 8.29(A)3 Accessory Structures and Uses.

ย  ย  ย  ย  ย  ย  ย  ย  ย  ย  ย  ย  ย  ย  ย  ย  ย  ย  ย  ย  ย  ย  ย  ย  ย  ย  ย  ย  ย  ย  ย  ย  ย  ย  ย  ย  ย  ย  ย  ย  ย  ย  ย  ย  ย  ย  ย  ย  ย  ย  ย  ย  ย  ย  ย  ย  ย  ย  ย  ย  ย  ย  ย  ย  ย  ย  ย  ย  ย  ย  ย  ย  ย  ย  ย  ย  ย  ย  ย  ย  ย ย 

ZBA2021-137: 336 Prospect St, Residential Two Family Zoning District

Applicant proposes to subdivide the property where proposed lot 27 will remain improved with a single family dwelling and with buildable lot area of 6,272 SF where 6,500 SF is required, with lot frontage and width of 56.99โ€™ where 75โ€™ is required as well as a detached garage in the rear yard with a proposed side yard setback of 1.4โ€™ where 4โ€™ is required, and where proposed lot 27A has buildable lot area of 5,502 SF where 6,500 SF is required and with lot frontage and width of 50โ€™ where 75โ€™ is required and seeks a variance from sections 6.01 Minimum Buildable Lot Area, 6.02 Minimum Lot Frontage and Width (2 counts), 8.29(A)3 Accessory Structures and Uses at Lot 27 and 6.01 Minimum Buildable Lot Area and 6.02 Minimum Lot Frontage and Width (2 counts) at Lot 27A.

ย  ย  ย  ย  ย  ย  ย  ย  ย  ย  ย  ย  ย  ย  ย  ย  ย  ย  ย  ย  ย  ย  ย  ย  ย  ย  ย  ย  ย  ย  ย  ย  ย  ย  ย  ย  ย  ย  ย  ย  ย  ย  ย  ย  ย  ย  ย  ย  ย  ย  ย  ย  ย  ย  ย  ย  ย  ย  ย  ย  ย  ย  ย  ย  ย  ย  ย  ย  ย  ย  ย  ย  ย  ย  ย  ย  ย  ย  ย  ย  ย ย 

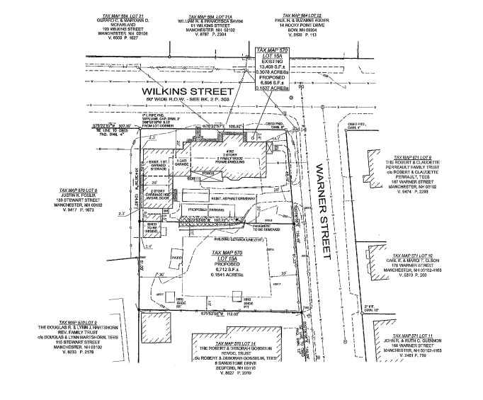
ZBA2021-138: 192 Warner Street, Residential One Family, Medium Density Zoning District

Applicant proposes to subdivide the property where proposed lot 15A will remain improved with a two family dwelling with buildable lot area of 6,696 SF where 15,000 SF is required, with lot frontage and width of 65.16โ€™ where 150โ€™ is required, with a side yard setback of 5.5โ€™ where 20โ€™ is required and with more than two parking spaces in the side yard setback and where proposed lot 15B will have buildable lot area of 6,712 SF where 7,500 SF is required and lot frontage and width of 61.33โ€™ where 75โ€™ is required and seeks a variance from sections 6.01 Minimum Buildable Lot Area, 6.02 Minimum Lot Frontage and Width (2 counts), 6.03 Side Yard Setback, 10.09(B)1 Parking Setbacks at Lot 15A, 6.01 Minimum Buildable Lot Area and 6.02 Minimum Lot Frontage and Width (2 counts) at Lot 15B.

ย  ย  ย  ย  ย  ย  ย  ย  ย  ย  ย  ย  ย  ย  ย  ย  ย  ย  ย  ย  ย  ย  ย  ย  ย  ย  ย  ย  ย  ย  ย  ย  ย  ย  ย  ย  ย  ย  ย  ย  ย  ย  ย  ย  ย  ย  ย  ย  ย  ย  ย  ย  ย  ย  ย  ย  ย  ย  ย  ย  ย  ย  ย  ย  ย  ย  ย  ย  ย  ย  ย  ย  ย  ย  ย  ย  ย  ย  ย  ย  ย ย 

For additional detail on the relief requested by applicants, see the Zoning Ordinance of the City of Manchester.


 

 

 

 

 

 


Sign up for the FREE daily newsletter and never miss another thing!

Subscribe

* indicates required

Support Ink Link